plus ASU of Pishgaman Siraf refinery
Loading the player ...

ASU of Pishgaman Siraf refinery

Project Name: ASU of Pishgaman Siraf refinery
Client:
Tiv Energy Company
Status: In Progress
Date:
2024
Location:
Assaluye - Bushehr
Description:
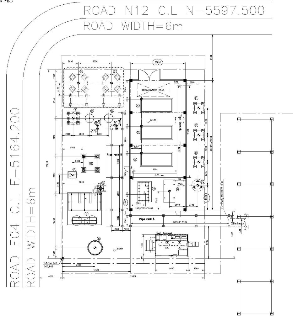
 The project of Air Separation Unit (ASU) of Pishgaman Siraf refinery located in near of Assaluyeh - Bushehr.
 This refinery converts 60,000 BPSD gas to LPG, hydro treated light and heavy naphtha, jet fuel, ultralow sulphur gasoil and atmospheric residue. 
Design and development of detail engineering drawings for below-mentioned foundations and structures have been accomplished by this company.
  • Air Compressor Building
  • Air Feeding Filter
  • Booster Pressure Vaporizer 
  • Cold Box
  • HP Receiver
  • Knock Out Drum
  • Lin Tank
  • Liquid Nitrogen Air Fin Vaporizer
  • Liquid Nitrogen Water Bath Vaporizer
  • Pipe Support 
  • Pre-Purification Skid for ASU 
  • Refrigerator 
  • Waste Liquid Evaporator
Galleries