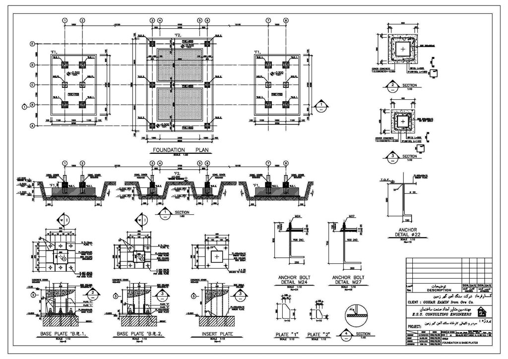
plus Gate and Guard Room of Gohar Zamin Iron Ore Concentrate Plant
Loading the player ...

Gate and Guard Room of Gohar Zamin Iron Ore Concentrate Plant

 Project Name: Gate and Guard Room of Gohar Zamin Iron Ore Concentrate Plant
 Client:
Barsoo Engineering Company
 Status:
Accomplished
 Date:
2014
 Location:
Gohar Zamin Iron Ore Mine – Sirjan - Kerman
 Description:
  The purpose of this project is construction of gate and guard room of Gohar Zamin iron ore concentrate plant with steel structure located in Gol Gohar Sirjan iron ore mine.
  Design and development of structural detail engineering drawings have been accomplished by this company.
Galleries