شرح :
|
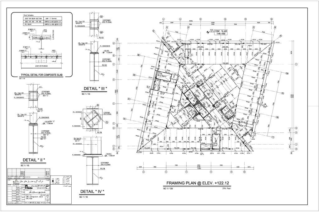
این پروژه، احداث هتل 36 طبقه با زیربنای تقریبی 6450 مترمربع واقع در تهران – میدان ونک میباشد.
سیستم سازه ای این برج، در زیرزمین، تلفیقی از ستون های فلزی کامپوزیت (پرشده با بتن) و دال بتنی بدون تیر می باشد و در بالای زمین، قاب ساختمانی ویژه فولادی (ستون های فلزی کامپوزیت و تیرهای فولادی) به همراه دال بتنی کامپوزیت می باشد. فونداسیون به صورت گسترده و با دیواهای حائل بتنی می باشد.
کنترل طراحی و کنترل نقشههای اجرایی سازه این برج توسط این مشاور انجام شده است.
.
|