plus سردر و نگهبانی کارخانه کنسانتره سنگ‌آهن گهرزمین
Loading the player ...

سردر و نگهبانی کارخانه کنسانتره سنگ‌آهن گهرزمین

 نام پروژه : سردر و نگهبانی کارخانه کنسانتره سنگ‌آهن گهرزمین
 نام کارفرما :
شرکت مهندسی برسو
 وضعيت :
خاتمه‌يافته
 تاريخ انجام :
1392
 محل پروژه :
كرمان - سیرجان - مجتمع سنگ آهن گهرزمین
 شرح :
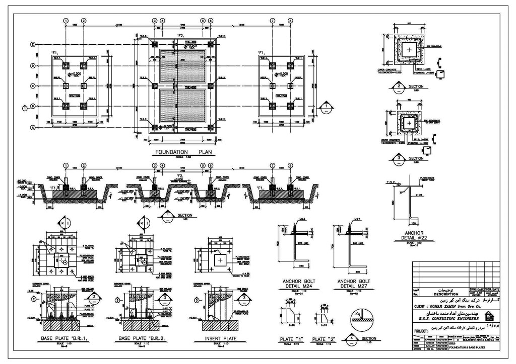
   این پروژه، احداث سردر و اتاق نگهبانی کارخانه تولید کنسانتره سنگ‌آهن گهرزمین با اسکلت فولادی واقع در مجتمع گل‌گهر سیرجان می‌باشد.
  طراحی و ارائه نقشه‌های اجرایی سازه آن توسط این مشاور انجام شده است.          
گالری ها